Appartement 3 pièce(s) 2 chambre(s) 77.35 m²
Paris (75004)A propos de ce bien
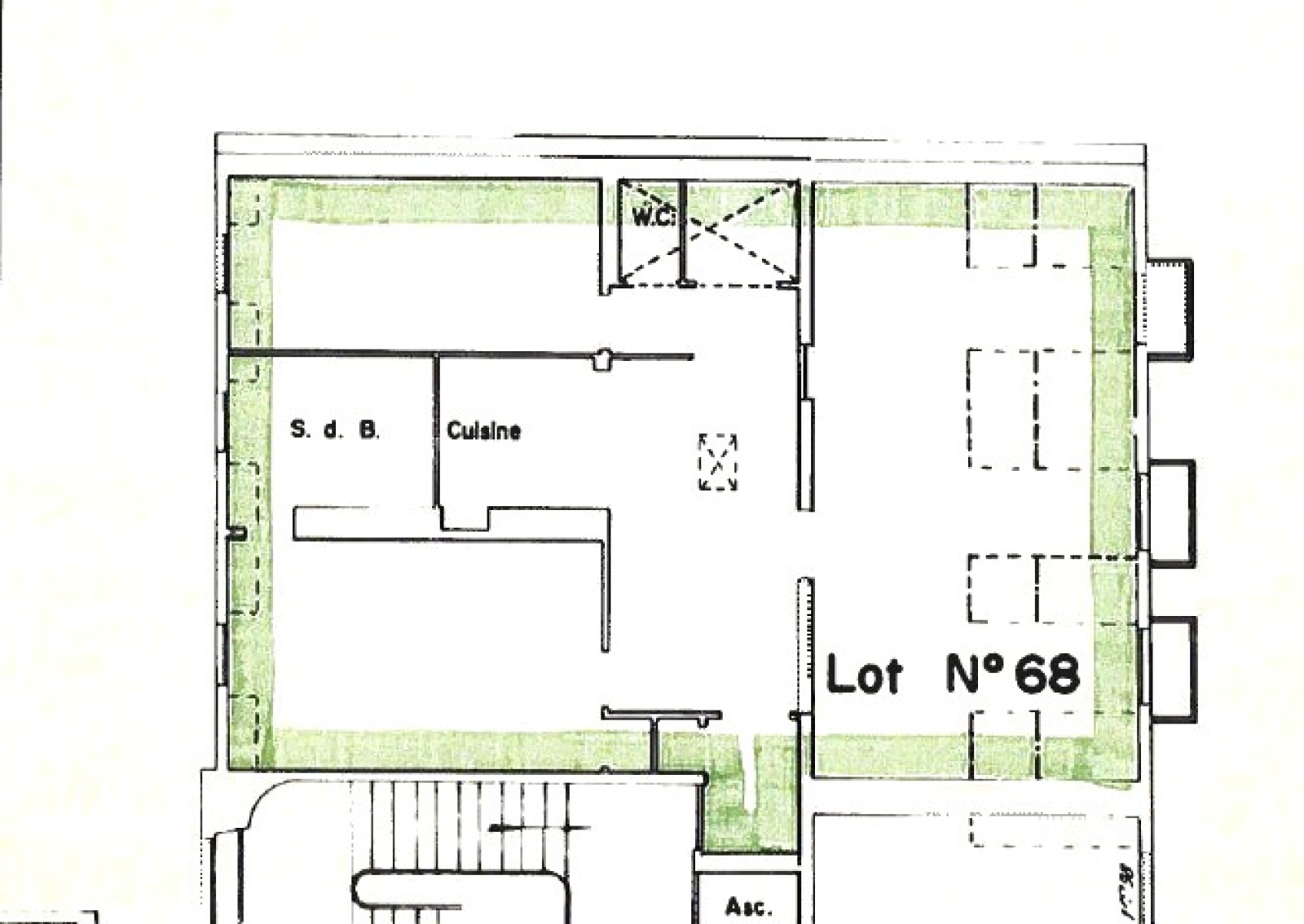
Au cœur du Marais, découvrez ce bien charmant et atypique de 3 pièces situé au 6ᵉ et dernier étage avec un ascenseur, disposant d'une surface de 77.35 m2 (71 carrez). Vous serez séduit par sa luminosité, son plan traversant et ses vues dégagées, avec trois charmants balcons avec vue panoramique. L'appartement se compose d'une entrée avec rangements, un agréable séjour avec coin salle à manger exposé plein sud, une cuisine dinatoire, une chambre parentale avec salle de bains, une seconde chambre, une salle d'eau, des toilettes séparées ainsi qu'une grande cave. Commerces et transports à proximité, bien rare et unique À VISITER SANS TARDER !
Les informations sur les risques auxquels ce bien est exposé sont disponibles sur le site Géorisques
Caractéristiques de ce bien
- Surface 77,35 m²
- carrez 70,65 m²
- 2 chambre(s)
- 1 salle(s) de bain
- 1 salle(s) d'eau
- construit en 1880
- cuisine américaine (semi-équipée)
- Chauffage individuel : radiateur (electrique)
- exposition Nord-Sud
- 6ème étage
- 6 étage(s)
- ascenseur
- vue Dégagée,Monument,Ciel
- cave
- balcon
- interphone
Diagnostics énergétiques
Logement à consommation énergétique excessive : classe F
Montant estimé des dépenses annuelles d'énergie pour un usage standard est compris entre 1 910 € et 2 640 € . Prix moyens des énergies indexés sur les années 2021, 2022 et 2023 (abonnements compris).
Informations financières
Informations de copropriété
Autour du bien
-
Commerces et santé
-
Loisirs
-
Ecoles
-
Transports
-
Pratique

